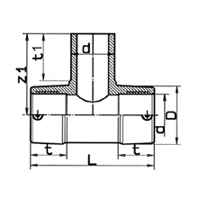
"Tes" 90º Electrosoldable en PPH

d  D  L  t  t1  z1  Ejecución 
25  37  100  37.5  46  50  monofilar 
32  45  106  30  50  53  monofilar 
40  54  129  38  53.5  69.5  monofilar 
50  67  149  40  59.5  76  monofilar 
63  88  182  54  67  90  monofilar 
75  97  182  47.5  72  89.5  monofilar 
90  120  244  70  85  120  monofilar 
110  144  298  70  89.5  140  monofilar 
125  159.5  315  88  95  157.5  monofilar 
160  200  340  110  105  105  monofilar 
180  223  360  160  105  105  monofilar 

[ Inicio ]

 

Teléfono: +34 943 673 630

Fax: +34 943 675 174

E-mail:  info@plastikalia.com

Español | English | Français